г Тула, ул Галкина, д 2
Пн-пт с 09:00 до 19:00, Сб-вс с 10:00 до 17:00

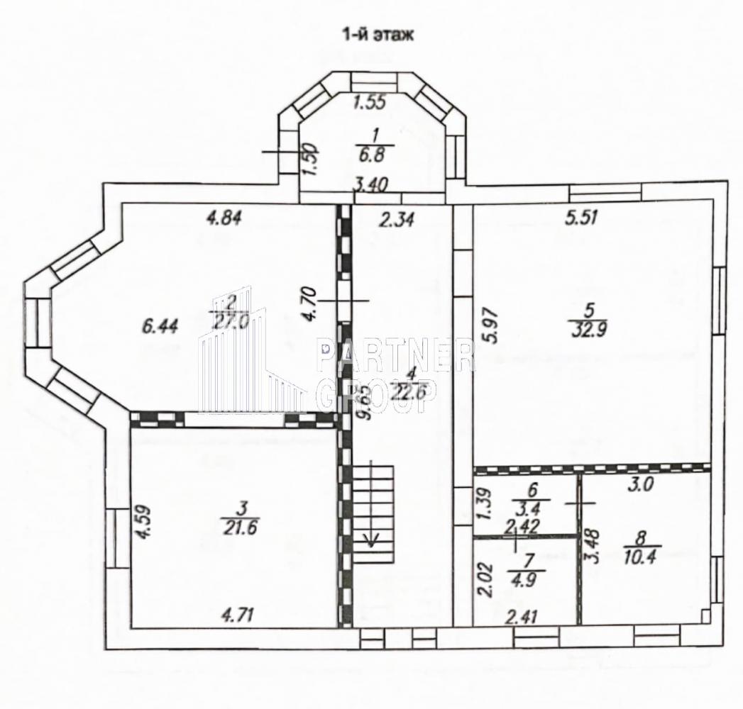
Дом с ремонтом ID: J2511

Тула, улица Центральная, д.60А

Комнаты 5
Площадь 262.5 м²
Этажи 2
Сдача 2021
22 499 000
85 710 /м²
Рассчитать ипотеку
Кашкин Олег

Кашкин Олег
Специалист по недвижимости

+7(910)602-1110

Kashkin.tula@yandex.ru
QR
Ссылка на объект

Описание

Предлагается к продаже роскошный дом для комфортной жизни всей семьи в 10 минутах езды от центра Тулы! Это не просто коробка, а полностью готовое к проживанию решение, где каждая деталь продумана до мелочей.

Ключевые преимущества:

Простор и комфорт: 262,5 кв. м. грамотно зонированной площади. Большая гостиная, изолированные спальни, современная кухня-столовая.

Ремонт «под ключ»: Выполнен качественный дизайнерский ремонт с использованием современных материалов. Вам не придется ничего доделывать — просто заезжайте и живите.

Полная комплектация: Вся мебель и техника для кухни остаются новым владельцам.

Участок 15 соток с благоустройством: Территория ухожена: есть газон, зона отдыха, беседка, парковка для нескольких автомобилей.

Полная автономность и комфорт в любое время года: Дом подключен ко всем необходимым сетям: свет, вода, канализация, отопление, газ.
В шаговой доступности магазин и остановка общественного транспорта. Асфальтированная и освещаемая дорога до самого дома.
Подробнее

Характеристики

  • Тип недвижимости Дома, дачи
  • Населенный пункт Тула
  • Адрес улица Центральная, д.60А
  • Тип объекта дом
  • Тип дома кирпичный
  • Общая площадь 262.5 м²
  • Площадь участка 15 сот.
  • Количество этажей 2
  • Год постройки 2021
  • Материал стен Газоблоки
  • Санузел в доме
  • Душ В доме
  • Удобства В доме
  • Статус участка Личное подсобное хозяйство (ЛПХ)
  • Количество комнат 5

Задать вопрос



Вас также может заинтересовать:

54
дом 180 м² на участке 6 сот.
Тула, посёлок Мясново, 8-й пр. Мясново
Привокзальный
17 800 000
  • Тип дома:кирпичный
  • Количество этажей:2
  • Год постройки:2022
  • Материал стен:Кирпич
20
дом 187 м² на участке 7 сот.
Тула, улица Гнутская

18 700 000
  • Тип дома:кирпичный
  • Количество этажей:2
  • Год постройки:2015
  • Материал стен:Кирпич
39
дом 249.8 м² на участке 3.6 сот.
Тула, улица Джамбула

 23 000 000   27 000 000
  • Тип дома:блочный
  • Количество этажей:2
  • Год постройки:2023
  • Материал стен:Газоблоки

Мы используем файлы cookie, чтобы обеспечить вам наилучший доступ к нашему веб-сайту

Скопировано